3-Zimmer-Dachgeschosswohnung, Baumkirchen

Property Icon
631.000 EUR
Kaufpreis Brutto
Property Icon
3
Zimmer
Property Icon
77.39 m²
Wohnfläche ca.
Property Icon
Wohnung / Dachgeschoß
Objekttyp

Objektdaten

Objekt ID
333
Objekttyp
Wohnung / Dachgeschoß
Adresse
Bahnhofstraße 24a, b, c
6121 Baumkirchen
Provisionspflichtig
Nein
Kaufpreis Brutto
631.000 €
Wohnfläche ca.
77.39 m²
Zimmer
3

Objektbeschreibung

IN BAU

DREIKLANG steht für durchdachtes Wohnen: helle Räume, hochwertige Ausstattung, bodenbündige Duschen, Raffstores, südseitige Terrassen – für ein Zuhause mit Komfort und Lebensqualität.

Ein Platz zum Wohlfühlen – Highlights zum laufenden Wohnbauprojekt:

  • Baumkirchen ist ein ruhiges, ländlich geprägtes Dorf und liegt zwischen Hall und Wattens auf der Sonnenseite des Inntals, im Einzugsgebiet zur Landeshauptstadt.
  • Auf einem ca. 2.700 m² großen Grundstück errichten wir ein funktionelles und durchdachtes Wohnbauprojekt mit drei unterirdisch, durch die Tiefgarage verbundenen Gebäuden.
  • Das Wohnbauprojekt wird in Stahlbeton Massivbauweise mit zeitgemäßer Wärme- und Trittschalldämmung, barrierefrei vom Keller bis zum Dach, errichtet.
  • Es werden 26 Wohnungen mit 2-, 3- oder 4-Zimmern und 44 Garagenparkplätze entstehen.
  • Alle Gärten, Terrassen und Balkone sind nach Südwesten, zur Sonne hin, ausgerichtet.
  • Die Bauqualität und Ausstattung ist wie bei allen REALBAU Wohnbauprojekten energieeffizient, langlebig und hochwertig.
  • Die nachhaltige Grundwasserwärmepumpe ermöglicht die Fußbodenheizung im Winter und die Fußbodenkühlung im Sommer.
  • Die hauseigene PV-Anlage an Dach und die PV-Balkongeländer produzieren Strom, der auch den privaten Haushalten zur Verfügung steht.
  • Gutes Raumklima, Schutz vor Überhitzung und Sichtschutz sind gegeben, durch die 3-fach-Isolierverglasung der Fenster und Balkontüren und durch die im Preis inkludierten und vorinstallierten elektrischen Raffstores.
  • Die Fußböden werden, wie in den Grundrissen dargestellt, mit Echtholzparkett oder keramischen Fliesen belegt.
  • Auf den Balkonen verlegen wir großformatige Feinsteinzeug Platten und auf den Terrassen im Erdgeschoss Betonplatten mit veredelter Oberfläche.
  • Leben in der Natur, mit schnellem Zugang zur Stadt: Durch das gut ausgebaute Öffi-Netz und die Nähe zur Tiroler Bundesstraße sowie zur Autobahn, eignet sich Baumkirchen bestens als Wohnort für Pendler:innen.
  • Notwendige Infrastruktur ist in den Nachbargemeinden gut vertreten und in wenigen Minuten erreichbar.
  • Erholung, Sport und Freizeitaktivitäten liegen direkt vor der Haustür in den angrenzenden Wiesen, Feldern und Wäldern, am Inn, den naheliegenden Fuß- und Radwegen sowie den Sportstätten in den Nachbargemeinden. 
  • Die Kaufabwicklung ist provisionsfrei und erfolgt über den Ratenzahlungsplan, wie im Bauträgervertragsgesetz vorgesehen.
  • Eigennutzer profitieren derzeit durch den möglichen Wegfall der Grundbuchseintragungsgebühr von 1,1 %, bis zu einem Kaufpreis in der Höhe von Euro 500.000.
  • Grundrissänderungen und Sonderwünsche sind, abhängig vom Baufortschritt, gegen Aufpreis möglich.
  • Die Rohbauarbeiten sind abgeschossen und der Innenausbau ist in vollem Gange – voraussichtlich im Juli 2026 werden die neuen Eigentümer Ihre Wohnungen beziehen können

 

Bitte kontaktieren Sie uns für weitere Details oder ein persönliches Gespräch, Sie erreichen uns unter +43 (0) 5223-90909, bzw. unter office@realbau.at.

DREIKLANG steht für durchdachtes Wohnen: helle Räume, hochwertige Ausstattung, bodenbündige Duschen, Raffstores, südseitige Terrassen – für ein Zuhause mit Komfort und Lebensqualität.

 

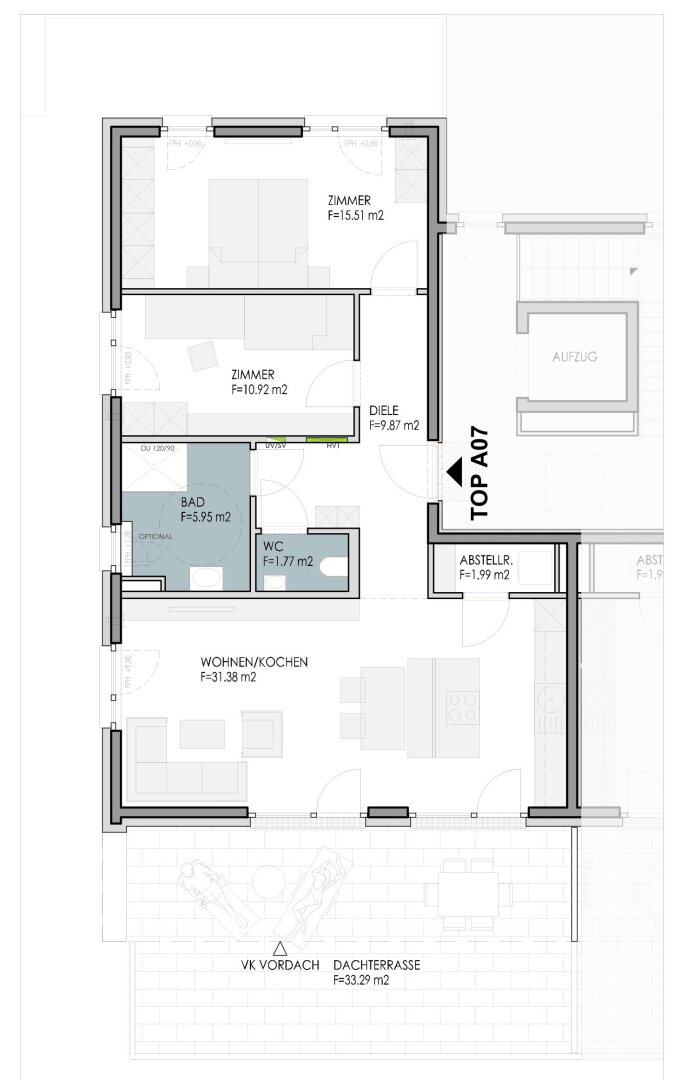
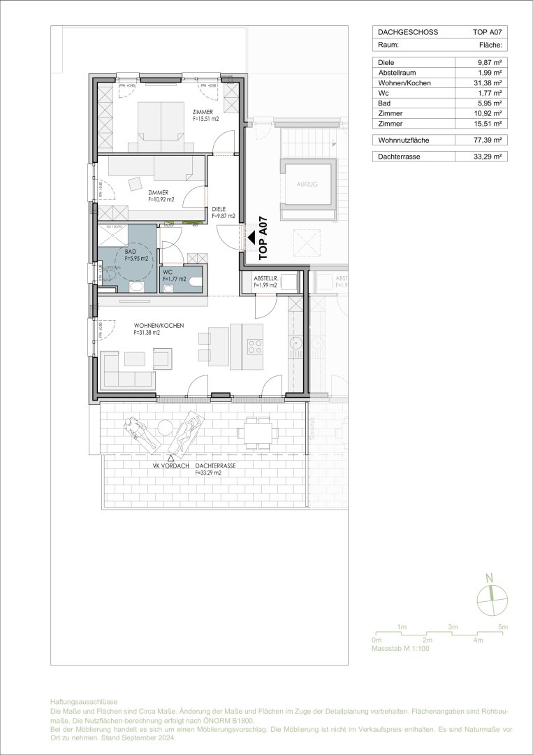
Die 3-Zimmer-Dachgeschosswohnung Top A07 erfreut ihre künftigen Bewohner durch eine ausgeklügelte Raumaufteilung:

  • die Schlafzimmer orientieren sich nach Nordosten und nach Westen, so dass sie im Sommer nicht überhitzen,

  • Bad und WC sind getrennt und können auf Wunsch umgestaltet werden,

  • der großzügige lichtdurchflutete offene Wohnraum und die Küche samt Kochinsel und Abstellraum mit über 30 m² Fläche, sind zur Terrasse hin ausgerichtet,

  • die Abendsonne mit viel Privatsphäre genießt man am besten auf der 33 m² teilüberdachten Terrasse, die im Sommer den Wohnraum verdoppelt.

  • Beachten sie unsere nachhaltige und hochwertige Ausstattung und die Extras!

  • zwei Garagenparkplätze sind für diese Wohnung reserviert, zum Kaufpreis von je Euro 28.800,00

 

Haben wir Ihr Interesse geweckt? Kontaktieren Sie uns für Fragen, Details oder weiterführende Unterlagen!
Sie erreichen uns unter +43 (0) 5223-90909-1605, bzw. unter eva.kremsmair@realbau.at.

 


Infrastruktur / Entfernungen

Gesundheit
Arzt <850m
Apotheke <925m
Klinik <3.375m
Krankenhaus <3.075m

Kinder & Schulen
Schule <775m
Kindergarten <850m
Höhere Schule <8.800m
Universität <2.850m

Nahversorgung
Supermarkt <900m
Bäckerei <725m
Einkaufszentrum <7.825m

Sonstige
Bank <900m
Geldautomat <900m
Post <1.600m
Polizei <2.700m

Verkehr
Bus <125m
Straßenbahn <7.400m
Autobahnanschluss <925m
Bahnhof <1.075m

Angaben Entfernung Luftlinie / Quelle: OpenStreetMap

Ausstattung

  • Räume veränderbar
  • Dusche
  • Fenster
  • Fliesen
  • Parkett
  • Fussbodenheizung
  • Solar
  • Erdwärme
  • Personenaufzug
  • Südwest Balkon
  • Rollstuhlgerecht
  • Kabel/Sat TV
  • Barrierefrei
  • Abstellraum vorhanden
  • Fahrradraum vorhanden
  • Bauweise: Massiv
  • Schlüsselfertig mit Keller
  • Seniorengerecht
  • Tiefgarage

Lage

Bahnhofstraße 24a, b, c
6121 Baumkirchen