124 m² Dachgeschosswohnung, Mils bei Hall

Property Icon
1.349.000 EUR
Kaufpreis Brutto
Property Icon
2
Zimmer
Property Icon
124.3 m²
Wohnfläche ca.
Property Icon
Wohnung / Dachgeschoß
Objekttyp

Objektdaten

Objekt ID
390
Objekttyp
Wohnung / Dachgeschoß
Adresse
Jagdweg 1
6068 Mils
Provisionspflichtig
Nein
Kaufpreis Brutto
1.349.000 €
Wohnfläche ca.
124.3 m²
Zimmer
2

Objektbeschreibung

Text im Projekt:

Design und Komfort – Premium-Wohnen für Sie

 

VILLA DIANA in Mils: exklusives Wohnprojekt mit 8 barrierefreien Wohnungen in Ruhelage nahe dem Dorfkern. Südwest-Ausrichtung, hochwertige Ausstattung, viel Privatsphäre und zwei Garagenplätze pro Einheit.

 

Exklusives Wohnbauprojekt in Mils bei Hall: Die VILLA DIANA besteht aus zwei Gebäudeteilen, die sich wie Flügel auf dem Grundstück erheben, so dass jede Wohnung über größtmögliche Privatsphäre verfügt. 

  • Grundstück in absoluter Ruhelage mit herrlicher Aussicht, trotzdem verkehrsgünstig gelegen
  • perfekte Süd-Westausrichtung der Wohnungen
  • großzügiges offenes Wohnen, lichtdurchflutet und barrierefrei
  • gemütliche Außenflächen mit viel Privatsphäre
  • hochwertige geschmackvolle Materialwahl und Ausstattung
  • individuelle Planung möglich
  • Sicherheit und zeitgemäße technische Standards wie versperrte Tiefgarage, Personenlift, energieeffiziente Heizung, Photovoltaikanlage, Wärme- Schalldämmung, Barrierefreiheit vom Keller bis zum Dach, einbruchhemmende Türen, Holz/Alufenster, Videosprechanlage, usw.
  • für jede Wohnung sind Garagenparkplätze reserviert zum Preis von je Euro 35.000,-

 

Das Wohnbauprojekt wurde für Personen konzipiert, die eine barrierefreie Wohnung mit allem Komfort und Sicherheit in bester Ruhelage suchen! 

Rufen Sie uns an und sichern Sie sich Ihren Wohntraum in diesem exklusiven Wohnbauprojekt!

 

TOP 07 – Lebensumfeld

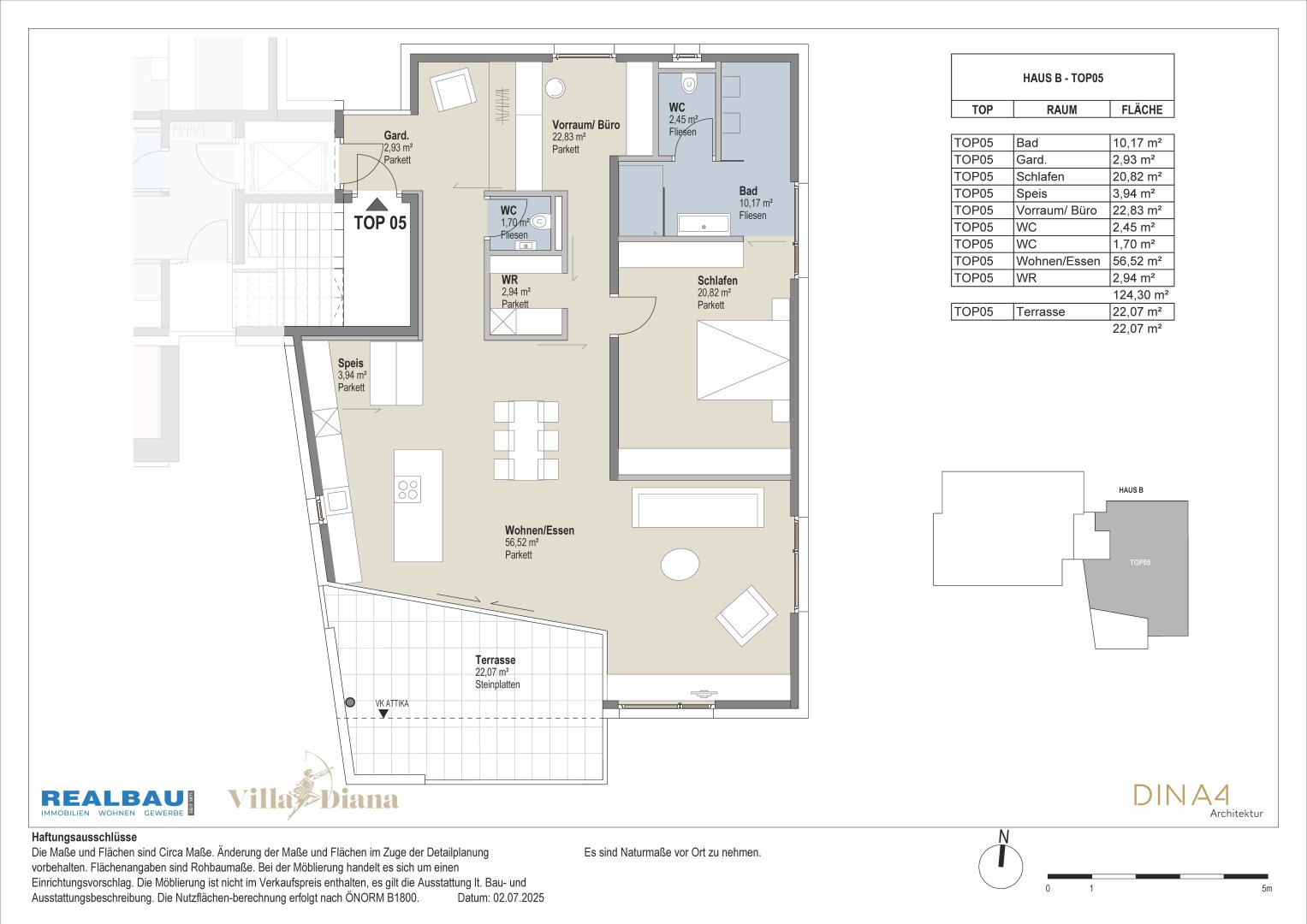
Die südlich ausgerichtete Dachgeschosswohnung Top 05 bietet auf rund 125 m² Wohnfläche ein durchdachtes Raumkonzept im gehobenen Segment. Hochwertige Qualität, klare Architektur und ein selbstverständlicher Anspruch an Komfort prägen diese besondere Wohnung.

Der Personenlift führt direkt in die Einheit. Küche mit Speis und Essbereich bilden das kommunikative Zentrum, das Wohnzimmer einen ruhigen Rückzugsort. Das Schlafzimmer verfügt über einen privaten Sanitärbereich, der optional zur Wellnesszone erweitert werden kann. Ein weiteres Zimmer eignet sich ideal als Büro oder Gästebereich; Garderobe und Wirtschaftsraum ergänzen die Planung funktional.

Highlight ist die südseitige Dachterrasse mit unverbaubarem Weitblick über Ober‑ und Unterland. Mehr als 180 Grad Panorama verleihen dem Wohnen eine außergewöhnliche Qualität – ein Lebensumfeld mit Weite, Licht und Ruhe.


Infrastruktur / Entfernungen

Gesundheit
Arzt <425m
Apotheke <550m
Klinik <1.875m
Krankenhaus <1.575m

Kinder & Schulen
Schule <175m
Kindergarten <225m
Höhere Schule <7.625m
Universität <1.375m

Nahversorgung
Supermarkt <1.025m
Bäckerei <1.025m
Einkaufszentrum <6.250m

Sonstige
Bank <450m
Geldautomat <450m
Post <350m
Polizei <2.175m

Verkehr
Bus <150m
Straßenbahn <5.800m
Autobahnanschluss <1.575m
Bahnhof <2.475m

Angaben Entfernung Luftlinie / Quelle: OpenStreetMap

Ausstattung

  • Räume veränderbar
  • Dusche
  • Wanne
  • Fenster
  • Fliesen
  • Parkett
  • Fussbodenheizung
  • Luftwärmepumpe
  • Klimatisiert
  • Personenaufzug
  • Süd Balkon
  • Rollstuhlgerecht
  • Kabel/Sat TV
  • Barrierefrei
  • Abstellraum vorhanden
  • Fahrradraum vorhanden
  • Flachdach
  • Schlüsselfertig mit Keller
  • Gäste-WC vorhanden
  • Seniorengerecht
  • Tiefgarage

Lage

Jagdweg 1
6068 Mils