2-Zimmer-Gartenwohnung, Baumkirchen

Property Icon
307.500 EUR
Kaufpreis Brutto
Property Icon
2
Zimmer
Property Icon
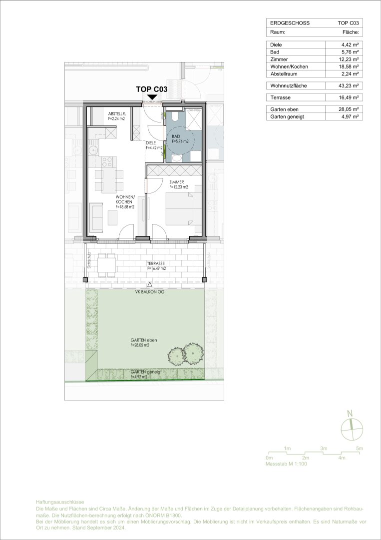
43.23 m²
Wohnfläche ca.
Property Icon
Wohnung / Gartenwohnung
Objekttyp

Objektdaten

Objekt ID
404
Objekttyp
Wohnung / Gartenwohnung
Adresse
Bahnhofstraße 24a, b, c
6121 Baumkirchen
Provisionspflichtig
Nein
Kaufpreis Brutto
307.500 €
Wohnfläche ca.
43.23 m²
Zimmer
2

Objektbeschreibung

IN BAU

DREIKLANG steht für durchdachtes Wohnen: helle Räume, hochwertige Ausstattung, bodenbündige Duschen, Raffstores, südseitige Terrassen – für ein Zuhause mit Komfort und Lebensqualität.

 

Ein Platz zum Wohlfühlen – Highlights zum aktuellen Wohnbauprojekt:

  • Baumkirchen ist ein ruhiges, ländlich geprägtes Dorf und liegt zwischen Hall und Wattens auf der Sonnenseite des Inntals.

  • Auf einem ca. 2.700 m² großen Grundstück errichten wir ein funktionelles und durchdachtes Wohnbauprojekt mit drei unterirdisch, durch die Tiefgarage verbundenen Gebäuden.

  • Es werden 26 barrierefreie 2-, 3- und 4-Zimmer Wohnungen und 44 Garagenparkplätze entstehen.

  • Alle Gärten, Terrassen und Balkone sind nach Südwesten – zur Sonne hin – ausgerichtet.

  • Die Bauqualität und Ausstattung ist wie bei allen REALBAU Wohnbauprojekten energieeffizient, langlebig und hochwertig.

  • Im Sommer gekühlt und im Winter geheizt wird mittels nachhaltiger Grundwasserwärmepumpe

  • Der notwendige Strom wird so weit wie möglich über die hauseigene PV-Anlage produziert.

  • Für gutes Raumklima sorgt die Dreifachisolierverglasung der Fenster und Balkontüren und der inkludierte Sonnenschutz mittels elektrischen Raffstores.

  • Die Fußböden werden mit Echtholzparkett oder keramischen Fliesen belegt.

  • Auf den Balkonen verlegen wir geschmackvolles Feinsteinzeug und auf den Terrassen im Erdgeschoss hochwertige Betonplatten.

  • Leben in der Natur, mit schnellem Zugang zur Stadt: Durch das gut ausgebaute Öffi-Netz und die Nähe zur Tiroler Bundesstraße sowie zur Autobahn, eignet sich Baumkirchen bestens als Wohnort für Pendler:innen.

  • Notwendige Infrastruktur ist in den Nachbargemeinden gut vertreten und in wenigen Minuten erreichbar.

  • Erholung, Sport und Freizeitaktivitäten liegen direkt vor der Haustür in den angrenzenden Wiesen, Feldern und Wäldern, am Inn, den naheliegenden Fuß- und Radwegen sowie den Sportstätten in den Nachbargemeinden. 

  • Die Kaufabwicklung ist provisionsfrei und erfolgt über den Ratenzahlungsplan, wie im Bauträgervertragsgesetz vorgesehen.

  • Eigennutzer profitieren derzeit vom Wegfall der Grundbuchseintragungsgebühr von 1,1 %, bis zu einem Kaufpreis in der Höhe von Euro 500.000.

  • Grundrissänderungen und Sonderwünsche sind, abhängig vom Baufortschritt, noch möglich.

  • Der Baustart ist bereits erfolgt – die Bezugsfertigstellung ist im Sommer 2026, geplant.

Bitte kontaktieren Sie uns für weitere Details oder ein persönliches Gespräch, Sie erreichen uns unter +43 (0) 5223-90909, bzw. unter office@realbau.at.

DREIKLANG steht für durchdachtes Wohnen: helle Räume, hochwertige Ausstattung, bodenbündige Duschen, Raffstores, südseitige Terrassen – für ein Zuhause mit Komfort und Lebensqualität.

 

In unserer barrierefreien 2-Zimmer-Gartenwohnung Top C02 können Sie sich gemütlich einrichten und den Ausblick Richtung Süden, in die Felder und Wiesen genießen. 

Der Grundriss ist durchdacht und funktional:

  • kompaktes Bad mit bodenebene Dusche,

  • Abstellraum bzw. Speiskammerl in der Küche,

  • Echtholzparkett im Wohn- und Schlafraum,

  • auch über das Schlafzimmer gelangt man auf die Terrasse,

  • elektrische Raffstore sind inkludiert (Sicht-, Sonnenschutz),

  • ebenso die bodenbündige Duschtasse inkl. Spritzschutzwand in Glas

  • Der Garten hat die perfekte Größe zum Entspannen, ohne dass der Arbeitsaufwand zur Belastung wird.

  • rollstuhlgerecht und barrierefrei!

  • Beachten sie unsere nachhaltige und hochwertige Ausstattung und die Extras!

  • ein Garagenparkplatz ist für diese Wohnung reserviert, zum Kaufpreis von Euro 28.800,00

 

Haben wir Ihr Interesse geweckt? Kontaktieren Sie uns für Fragen, Details oder weiterführende Unterlagen!
Sie erreichen uns unter +43 (0) 5223-90909-1605, bzw. unter eva.kremsmair@realbau.at.

 


Infrastruktur / Entfernungen

Gesundheit
Arzt <850m
Apotheke <925m
Klinik <3.375m
Krankenhaus <3.075m

Kinder & Schulen
Schule <775m
Kindergarten <850m
Höhere Schule <8.800m
Universität <2.850m

Nahversorgung
Supermarkt <900m
Bäckerei <725m
Einkaufszentrum <7.825m

Sonstige
Bank <900m
Geldautomat <900m
Post <1.600m
Polizei <2.700m

Verkehr
Bus <125m
Straßenbahn <7.400m
Autobahnanschluss <925m
Bahnhof <1.075m

Angaben Entfernung Luftlinie / Quelle: OpenStreetMap

Ausstattung

  • Räume veränderbar
  • Dusche
  • Fliesen
  • Parkett
  • Fussbodenheizung
  • Solar
  • Erdwärme
  • Klimatisiert
  • Personenaufzug
  • Südwest Balkon
  • Rollstuhlgerecht
  • Kabel/Sat TV
  • Barrierefrei
  • Abstellraum vorhanden
  • Fahrradraum vorhanden
  • Bauweise: Massiv
  • Schlüsselfertig mit Keller
  • Seniorengerecht
  • Tiefgarage

Lage

Bahnhofstraße 24a, b, c
6121 Baumkirchen