3-Raum-Büro samt Empfang inmitten der Haller Altstadt

Property Icon
2.120 EUR
Gesamtmiete Netto
Property Icon
4
Zimmer
Property Icon
161.95 m²
Nutzfläche ca.
Property Icon
Büro / Praxis / Büro
Objekttyp

Objektdaten

Objekt ID
362
Objekttyp
Büro / Praxis / Büro
Adresse
Sparkassengasse
6060 Hall in Tirol
Provisionspflichtig
Nein
Betriebskosten Netto
518 €
Summe Miete Netto
1.602 €
Gesamtmiete Netto
2.120 €
Kaution
7.700 €
Nutzfläche ca.
161.95 m²
Zimmer
4

Objektbeschreibung

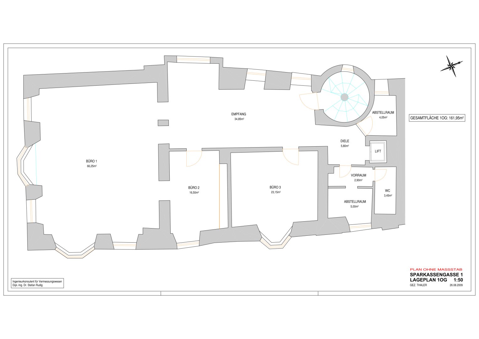
Inmitten der historischen Altstadt von Hall in Tirol, wird ab sofort ein 3-Raum-Büro langfristig neu vermietet. Das lichtdurchflutete Büro befindet sich im 1. Obergeschoss und hat eine Fläche von ca. 161,95. m². Es besteht aus einem Empfang mit 3 Büroräumen sowie einem Abstellraum und einer WC-Anlage. 

Weiters sind generell ein paar Erneuerungen notwendig, welche Vermieterseits nach Unterfertigung des Mietvertrages noch durchgeführt werden und auf die Verwendungsweise des zukünftigen Mieters abgestimmt werden.

Die Büroräumlichkeiten liegen inmitten der Haller Altstadt und es befindet sich alles in fußläufiger Nähe. 
 

Details im Überblick:

  • großzügiges jedoch sanierungsbedürftiges 3-Raum-Büro, rund 161,95m²
  • gesamtes 1. Obergeschoss 
  • Fahrstuhl direkt ins Büro 
  • einladender Empfang mit 3 separaten Büroräumen
  • ausreichender Abstellraum bzw. Archiv, WC-Anlage
  • zentrale Lage mitten in der Altstadt sowie gute Infrastruktur
  • verfügbar 2 bis 3 Monate nach Mietvertragsunterfertigung mit Fertigstellung der Sanierungsarbeiten

 

Kosten im Überblick:

  • Miete netto € 1.601,94
  • Betriebskosten netto €    518,06
  • Gesamtmiete netto € 2.120,00
  • Kaution € 7.700,00
  • Provision: 1,5 BMM

 

Für weitere Fragen oder einen kostenlosen und unverbindlichen Besichtigungstermin stehen wir Ihnen gerne zur Verfügung!

Realbau GmbH
Ansprechperson: Yvonne Huber

Brockenweg 2, A-6060 Hall in Tirol
Tel.: +43 (0)5223-90909
Homepage: www.realbau.at


Infrastruktur / Entfernungen

Gesundheit
Arzt <250m
Apotheke <250m
Klinik <250m
Krankenhaus <750m

Kinder & Schulen
Schule <250m
Kindergarten <250m
Universität <1.000m
Höhere Schule <5.750m

Nahversorgung
Supermarkt <250m
Bäckerei <250m
Einkaufszentrum <4.250m

Sonstige
Bank <250m
Geldautomat <250m
Polizei <250m
Post <250m

Verkehr
Bus <250m
Straßenbahn <4.000m
Autobahnanschluss <1.000m
Bahnhof <750m

Angaben Entfernung Luftlinie / Quelle: OpenStreetMap

Ausstattung

  • Fernwärme
  • Personenaufzug

Lage

Sparkassengasse
6060 Hall in Tirol